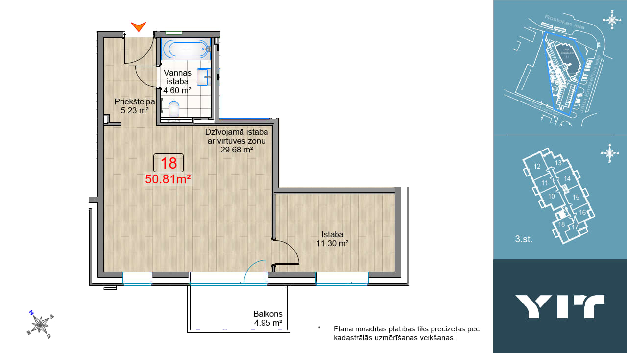
Dzīvoklis Nr. A 18 2-ist. 50,8 m2

Rubīns I

Būvniecības stadija
Rezervēts
Istabu skaits 2
Stāvs 3
Pārdošanas cena 129 600 €
Skatīt vairāk
SAZINĀTIES AR MUMS

Dzīvokļa informācija

Pārdošanas cena
129 600 €
Statuss
Rezervēts
Stāvs
3/13
Istabu skaits
2
Dzīvojamā platība
50,80 m²
Kopējā platība
55,80 m²
Balkons
5,00 m²
Maršruts Uz

Līdzīgi dzīvokļi

    • Dzīvokļi

      Pēc Jūsu meklēšanas kritērijiem neviens dzīvoklis nav atrasts

       

Pēc Jūsu meklēšanas kritērijiem neviens dzīvoklis nav atrasts

 

Sazināties ar mums

*Obligāti aizpildāmi

Rubīns I
A 18, 2h+k, 50,8 m²
Es vēlos izmantot iespēju saņemt informāciju par izdevīgiem piedāvājumiem, projektu uzsākšanu, jaunumiem un interesantiem, iedvesmojošiem padomiem saistībā mājokļa iekārtošanu un dzīvi tajā.