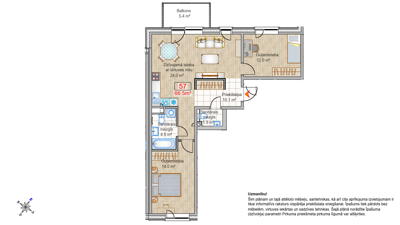
Dzīvoklis Nr. C 57 3-ist. 66,5 m2

Mārpagalmi 3

Būvniecības stadija
Brīvs
Istabu skaits 3
Stāvs 1
Pārdošanas cena 174 900 €
Skatīt vairāk
SAZINĀTIES AR MUMS

Dzīvokļa informācija

Pārdošanas cena
174 900 €
Statuss
Brīvs
Stāvs
1/6
Istabu skaits
3
Dzīvojamā platība
66,50 m²
Kopējā platība
71,90 m²
Balkons
5,40 m²
Papildus informācija
Iegādājoties dzīvokļa īpašumu, katrs klients iegādājas arī daļu no labiekārtota parka kvartāla teritorijā. Cena ir 241 EUR (ieskaitot PVN), tā var palielināties par 2 - 10 EUR, ja iegādājaties papildus pazemes autostāvvietu vai noliktavu.
Maršruts Uz

Līdzīgi dzīvokļi

    • Dzīvokļi

      Pēc Jūsu meklēšanas kritērijiem neviens dzīvoklis nav atrasts

       

Pēc Jūsu meklēšanas kritērijiem neviens dzīvoklis nav atrasts

 

Sazināties ar mums

*Obligāti aizpildāmi

Mārpagalmi 3
C 57, 3h+k, 66,5 m²
Es vēlos izmantot iespēju saņemt informāciju par izdevīgiem piedāvājumiem, projektu uzsākšanu, jaunumiem un interesantiem, iedvesmojošiem padomiem saistībā mājokļa iekārtošanu un dzīvi tajā.