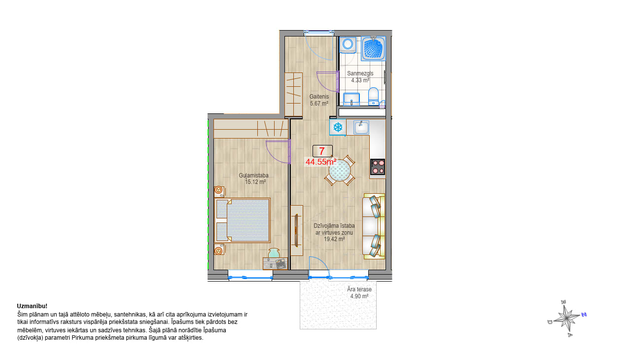
Dzīvoklis Nr. A 7 2-ist. 44,6 m2

Smilgas 1

Būvniecības stadija
Brīvs
Istabu skaits 2
Stāvs 1
Pārdošanas cena 104 500 €
Skatīt vairāk
SAZINĀTIES AR MUMS

Dzīvokļa informācija

Pārdošanas cena
104 500 €
Statuss
Brīvs
Stāvs
1
Istabu skaits
2
Dzīvojamā platība
44,60 m²
Kopējā platība
49,50 m²
Balkons
4,90 m²
Maršruts Uz

Līdzīgi dzīvokļi

    • Dzīvokļi

      Pēc Jūsu meklēšanas kritērijiem neviens dzīvoklis nav atrasts

       

Pēc Jūsu meklēšanas kritērijiem neviens dzīvoklis nav atrasts

 

Sazināties ar mums

*Obligāti aizpildāmi

Smilgas 1
A 7, 2h+k, 44,6 m²
Es vēlos izmantot iespēju saņemt informāciju par izdevīgiem piedāvājumiem, projektu uzsākšanu, jaunumiem un interesantiem, iedvesmojošiem padomiem saistībā mājokļa iekārtošanu un dzīvi tajā.